當前位置: 主頁 > 裝修案例 > 太原裝修口碑好的公司-太原裝修公司哪家靠譜-太原萬柏林裝修除味公司哪家好
案例風格
后現代風格
案例戶型
三居室
設計師
梁鵬
房屋面積
113m2
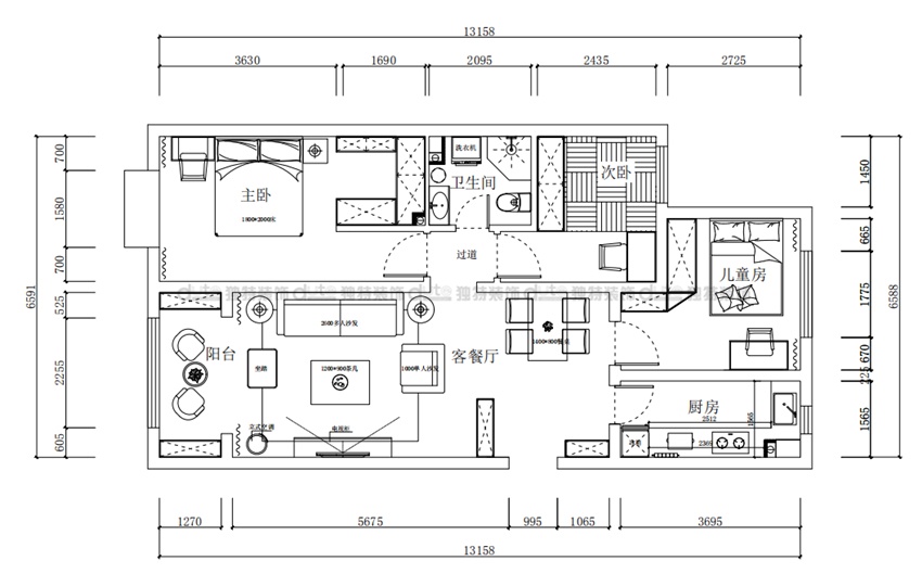
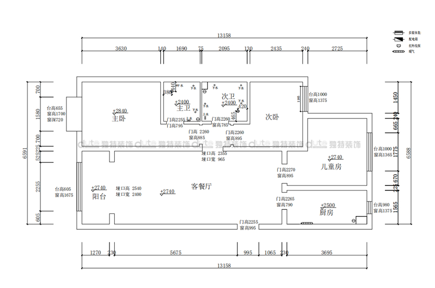
案例設計師:梁鵬
小區:望府
造價:8W
面積:113平米
區域:全屋
幾室幾廳:三室兩廳
裝修風格:后現代
案例說明:本案采用后現代的風格設計,藍色布藝的融入跟家具的搭配,讓整個效果更加明亮。同時賦有時尚感與實用性。







文章說明:裝修效果圖是本公司為業主提供的原創設計展示,如需轉載請提前聯系本公司。知識類內容為小編手寫原創,圖片因需要與內容有更高的匹配度因此部分來源于網絡,如有侵權請聯系本公司,小編第一時間整改刪除。
免費申請戶型規劃
專屬設計師免費1對1全程服務
你家預算
108080元
免費電話報價
13453430516