當前位置: 主頁 > 裝修案例 > 太原裝修公司暖心推薦-太原裝飾公司裝修材料選購知識-太原裝修公司親薦時尚裝修設計
案例風格
現代簡約
案例戶型
三居室
設計師
郭旭東
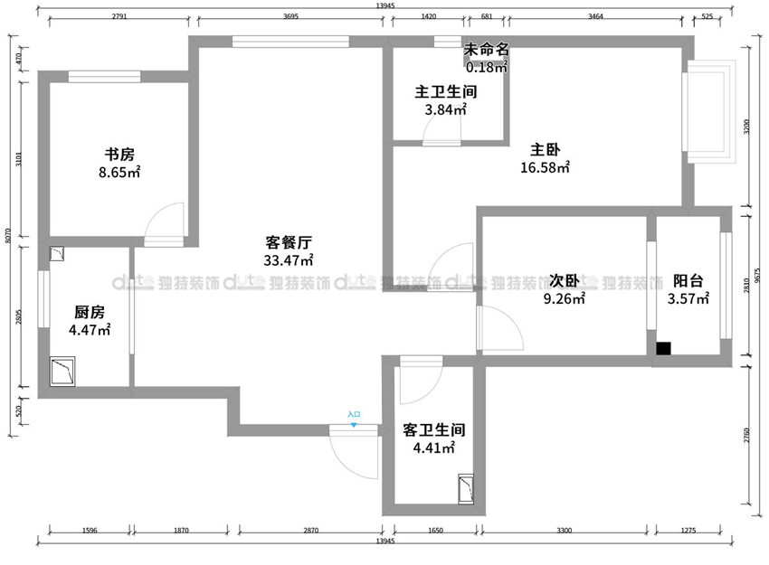
房屋面積
123m2
案例設計師:郭旭東
小區:贊城二期
造價:18萬
面積:123
區域:客餐廳 廚房
幾室幾廳:三室三廳
裝修風格:現代簡約
案例說明:搞工程的老板給女兒結婚準備的婚房,全程溝通簡單明了,干脆,從量房到設計出圖,施工開始,非常迅速,設計師有最大的獨立設計感,在效果圖的還原上做到了基本百分百還原,業主非常滿意,通過灰白材質的碰撞,拉伸空間感的同時,做到一個整體舒適度的協調,搭配上后期的軟裝。








文章說明:裝修效果圖是本公司為業主提供的原創設計展示,如需轉載請提前聯系本公司。知識類內容為小編手寫原創,圖片因需要與內容有更高的匹配度因此部分來源于網絡,如有侵權請聯系本公司,小編第一時間整改刪除。
免費申請戶型規劃
專屬設計師免費1對1全程服務
你家預算
108080元
免費電話報價
13453430516