當前位置: 主頁 > 裝修案例 > 太原什么裝修公司不錯-太原市哪家裝修公司性價比好-太原市那家裝修公司好些
案例風格
中式風格
案例戶型
三居室
設計師
吳澤鵬
房屋面積
118m2
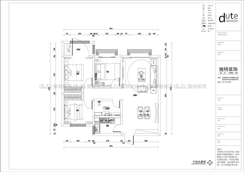
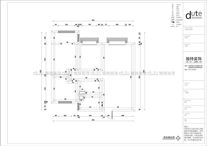
案例設計師:吳澤鵬
小區:華星源
造價:
面積:118
區域:
幾室幾廳:三室兩廳
裝修風格:新中式
案例說明:本案采用新中式的風格設計,現代元素的融入跟中式家具的搭配,既體現中國傳統神韻,又具備現代感的新設計,新理念。








文章說明:裝修效果圖是本公司為業主提供的原創設計展示,如需轉載請提前聯系本公司。知識類內容為小編手寫原創,圖片因需要與內容有更高的匹配度因此部分來源于網絡,如有侵權請聯系本公司,小編第一時間整改刪除。
免費申請戶型規劃
專屬設計師免費1對1全程服務
你家預算
108080元
免費電話報價
13453430516