當前位置: 主頁 > 裝修案例 > 太原大型裝修公司-太原杏花嶺裝修公司-太原裝修公司公司前十強
案例風格
歐式風格
案例戶型
三居室
設計師
左振琪
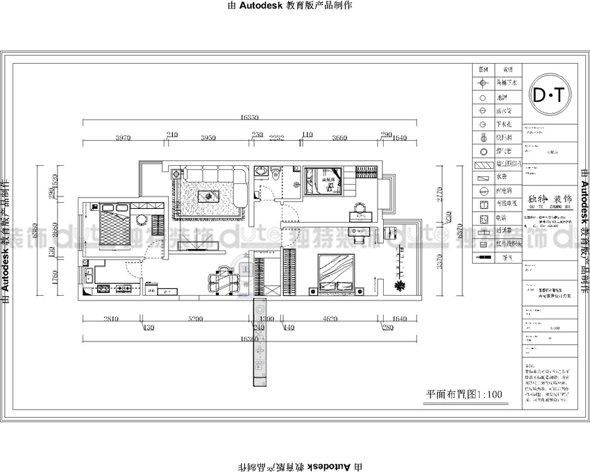
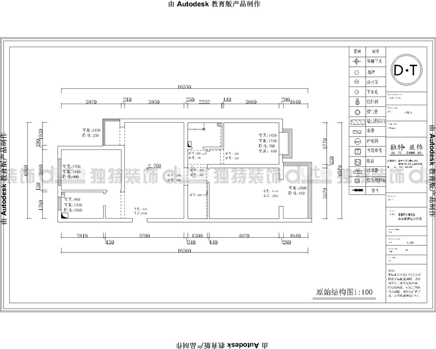
房屋面積
123m2
案例設計師:左振琪
小區:景都花苑
造價:半包4萬
面積:123
區域:太原
幾室幾廳:三室兩廳一廚一衛
裝修風格:簡歐
案例說明:本案例屬于簡歐風格,整體規劃難點是電視背景墻的設計,本案通過簡約通透的設計理念不至于使整個空間顯得狹小,因為空間有限,所以家具沒有用太復雜的傳統歐式。





文章說明:裝修效果圖是本公司為業主提供的原創設計展示,如需轉載請提前聯系本公司。知識類內容為小編手寫原創,圖片因需要與內容有更高的匹配度因此部分來源于網絡,如有侵權請聯系本公司,小編第一時間整改刪除。
免費申請戶型規劃
專屬設計師免費1對1全程服務
你家預算
108080元
免費電話報價
13453430516