當前位置: 主頁 > 裝修案例 > 太原哪個裝修公司比較專業-太原獨特裝修公司口碑怎么樣-太原10大裝修公司排名整裝服務
案例風格
其他
案例戶型
二居室
設計師
左振琪
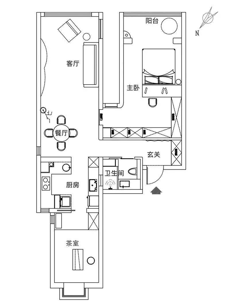
房屋面積
98m2
絕美的侘寂風案例,房子使用面積98㎡,放眼望去竟有140㎡的既視感。
屋主平時一人獨居,有喝茶、冥想的習慣,想要一個簡單沉靜的居住空間,既能安靜獨處,又能呼朋引伴,成為聚會的小據點。
改造前,戶型相對封閉,小功能區用墻壁隔開,一間套一間,功能混亂,動線復雜。
更尷尬的是:層高僅僅2.55m。
Before

設計師將多余的封閉空間打開,充分利用被浪費的走廊,打造了唯美寬敞的客餐區、復合功能的廚房&家務區、巧妙分割的臥室&工作區。
布局疏密有致,收放自如,動線也非常流暢。
After
視覺效果上,降低家具高度以拉伸空高,并用層次豐富的同色系,營造了一個靜謐的環境。
客餐廳和臥室墻面使用了藝術黏土,質感粗糲具有紋理感,廚房衛生間則使用了微水泥,細膩又防水,有高級的灰度。
全屋無主燈布局和智能家居的打造,更讓居住體驗舒適便捷,同時,這還是個不怕抓、好打理的貓咪友好之家哦!
01
玄關
整個房間用了很多弧形線條,以中和直線的僵硬,入戶就做了一段拱頂走廊,創造進門的儀式感。
對面一組多層實木板定制的通頂玄關柜,下方留空200mm,放進出門常換的兩三雙鞋,還方便掃地機器人進入。
玄關區域的光源由三部分構成,左側的頂部燈帶、玄關嵌入開放格燈帶,以及一個圓形壁燈散發出一圈漫反射的光暈。
沒有直射的燈光,將氛圍營造得很柔和。
02
客廳
日本侘寂風崇尚尊重自然形態和歲月的侵蝕,讓設計隱藏在材質背后,這樣的審美追求在軒銘家體現的尤為明顯。
以藝術黏土所調出的啞光色墻面+頂面作為大背景,木地板選擇了實木貼皮的大藝樹淺色地板,成為畫布一般的基調。
矮背的白色沙發,和DIY的年代感電視柜,經典中古家具和高大的植物,在陽光的投影下別具藝術氣息。
電視下的收納架是屋主自己搭的,由淘來的古董級舊木板和兩塊斑駁的方石墩構成。
發現這塊老木板之后,軒銘將它埋進土中半個月后才取出,后交由工廠處理,以達到想要的質感。
小米大師電視是屋主強烈推薦的,一萬二的價位性價比很高,有超棒的畫面細節,后面還安裝了可旋轉電視架,吃飯的時候也可以看。
昌迪加爾椅和玻璃鋼邊幾,配上一盞通體玻璃罩的落地燈,構建出了一個愜意的讀書角。
通頂貓爬架以伸縮桿頂在上方固定,讓兩只貓自在跑跳。
還給貓咪買了智能喂食盆,從此不用擔心出門餓到主子啦~
03
餐廳
餐廳的玻璃鋼圓桌美觀輕便,正上方垂一盞小圓吊燈,具有很好的對稱之美。
桌面直徑1000mm,4-5人圍坐都沒有問題,好看還省空間
又一個昌迪加爾椅,是和讀書椅同時定制,木色也是特別調過的,致敬大師設計。
十八紙的圓凳,古樸又實用,擺上一個淘來的老邊柜,仿佛時光交錯。
餐廳邊的小圓窗正對玄關。
04
廚房
設計師拆掉墻體,由原來的封閉式廚房變成全開放式。
沒有了墻體,過道就相應變寬了,在U型臺面基礎上新加了一條備餐臺,雙臺面的設計延伸了操作空間,備餐更順心了。
屋頂L型燈帶和射燈,不擔心下廚光線不夠。
廚房整體是屋主喜愛的深色調,微水泥的墻面防水性好,肌理自然舒適,深灰色實木板的櫥柜,表面也有漂亮的紋理。
整體吊柜+地柜+通頂柜,收納空間非常充分,還有多余的地方,能儲藏其他空間放不下的生活用品。
靠近餐廳的地柜,開門也是朝向餐廳,可作為另一個餐邊柜,細節設計十分用心。

I型臺面做了常規水槽和上掀式洗碗機,U型臺面加了一個可折疊的隱藏式水槽,不用可以直接作為臺面,省空間!
廚房沒有走燃氣,嵌入電磁爐、電陶爐,火力絲毫不比燃氣灶弱,安全好打理。

強力抽油煙機,完美解決開放式廚房的油煙問題。
05
衛生間
墻排智能馬桶,好看又便利,墻排龍頭讓洗面池也有了極簡主義的感覺。

長條巖板洗面臺,一體式臺下盆設計,方便使用,容易清潔。
下方做木條擱板,用編框儲藏洗滌用品,馬桶上方空間還做了吊柜,補充儲物功能。

貫穿式的燈帶設計,同時照亮兩個空間,淋浴間用黑框玻璃推拉門,安裝恒溫即熱式電熱水器,一邊加熱一邊出水,不用看到傳統電熱水器的笨重儲水箱。
06
臥室 & 工作室
空間2/3處有一道橫梁,設計師就勢將格局一分為二:臨陽臺區域作為臥室,內側作為工作區。

臥室空間擴大后,L型的通頂儲藏柜,成為收納巨獸。

特別提示:床下空隙不高于3cm ,能防止貓咪鉆進去。
一側床頭燈直接用條形燈,通過轉動能調整照明方向,另一側床頭用了小LED臺燈。
工作區用一個長工作臺作為空間分割,正上方裝了條形LED燈管,照亮整個桌面。
桌下買了抽屜式收納柜,上下6層,非常實用,桌旁的通頂柜還特別留出一條開放格,做為補充收納和展示區。

L型柜體區域圍合出一個長條空間,相當于一個簡單的衣帽間,上方明裝筒燈,作為這一區域的整體光源。
07
茶室
屋主本人喜歡喝茶,茶室局部抬高300mm,做了地臺榻榻米,下方儲存進使用頻率不高的物品。
平時在這里獨處或會客,朋友也可以在這兒留宿。
茶室做的很簡單,有賴于墻面底色的烘托,一方茶幾,兩個邊柜,一盞小吊燈,就構成了這個禪意十足的空間。
同時在頂部藏一道燈帶,邊柜上方加一盞臺燈作為補充光源,令氣氛更加豐富。
08
走廊

從廚房到茶室的過道,一邊嵌入冰箱,另一邊嵌入洗烘一體機,成為一個小型家務區。

家電嵌入柜體的設計,讓室內更有整體感,同時多余的空間都能直接作為儲物。
在不用烘干機時,臥室陽臺還裝了電動晾衣繩和頂裝烘干設備,衣服和床品晾曬非常方便。

文章說明:裝修效果圖是本公司為業主提供的原創設計展示,如需轉載請提前聯系本公司。知識類內容為小編手寫原創,圖片因需要與內容有更高的匹配度因此部分來源于網絡,如有侵權請聯系本公司,小編第一時間整改刪除。
免費申請戶型規劃
專屬設計師免費1對1全程服務
你家預算
108080元
免費電話報價
13453430516