當前位置: 主頁 > 裝修案例 > 太原別墅裝修公司哪家好-太原最好的裝修公司是哪家-太原獨特裝修公司口碑好不好
2021-06-05 15:40:16
1
1592次
案例風格
現代簡約
案例戶型
三居室
設計師
梁鵬
房屋面積
160m2
舒適度滿滿又高顏值的家,是我們對美好生活的向往。
分享好看的家,給自己家里裝修和裝飾提供最直接的視覺參考,給不一樣的生活方式提供靈感,給眼睛提供舒適感,最最最重要的,我們也能不斷提升審美和品味。
接下來讓我們進入存圖模式吧~~~
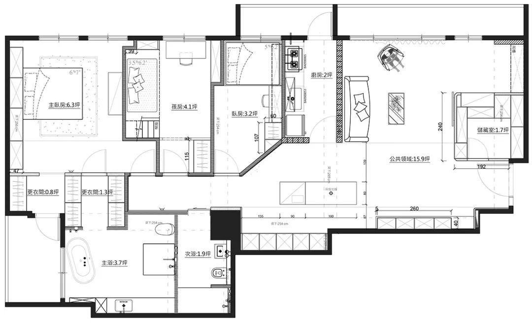
房子室內使用面積165㎡,三房兩衛,常住三人,夫妻和小女兒。
把喜歡的元素都融進了現代風格的框架里:水泥很硬派,家具精致現代,細節的燈飾又有法式古典味,搭配在一起竟然不違和。


水泥墻砌成的背景墻,實在獨特,錯落有致的開洞,希望有一種虛虛實實的空間感。
現在小女兒很喜歡把手伸進去和在廚房的父母打招呼,也很有趣。



女兒房布局有巧思,把隔墻改成“凹”形,把床嵌進去,同時主臥進門處獲得一個過渡空間,避免直接見床,極致利用了面積。
用斜屋頂模仿閣樓,增加童趣;整體色調偏輕柔,給孩子一個明亮的成長環境。
本來165㎡的使用面積,做四房、五房都綽綽有余,但屋主考慮了自身需求以后,還是做成了三房,除了女兒房和主臥,只留了一個小客房給外人。
更多的面積給自家人用,主臥是一個大套間,通過衣帽間進入浴室。
浴室有十幾平米,有長條洗手臺,可以當梳妝臺用,有浴缸,還有茶色玻璃淋浴房,布局非常寬松舒適。



文章說明:裝修效果圖是本公司為業主提供的原創設計展示,如需轉載請提前聯系本公司。知識類內容為小編手寫原創,圖片因需要與內容有更高的匹配度因此部分來源于網絡,如有侵權請聯系本公司,小編第一時間整改刪除。
免費申請戶型規劃
專屬設計師免費1對1全程服務
你家預算
108080元
免費電話報價
13453430516